.jpg)
Aanbouw MH02
Het ontwerp is nauw verbonden met de bestaande gebouwen in de omgeving.
Door het houten karakter en de vorm van het dak.
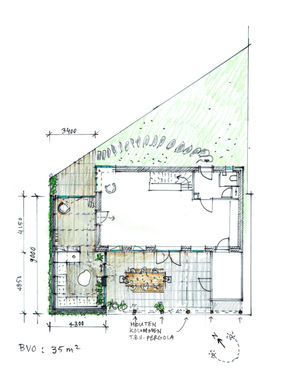
De dakvorm van de aanbouw met een hellinghoek van 10 graden is afgeleid van de bestaande berging, Het dak stijgt parallel mee en dan knikt het weer omlaag. Het dak is grotendeels bedekt met sedumtapijt, dit is een duurzaam en milieuvriendelijk element van het ontwerp. Het draagt bij aan de biodiversiteit, biedt isolatie, en draagt bij aan het verminderen van regenwaterafvoer. Bovendien zorgt het sedumdak voor een groen aanzicht.
Naast het groene dak zal ook de zuid- en westgevel verrijkt worden met klimplant begroeiing. De keuze voor plantensoorten zoals de Toscaanse jasmijn, Trompetbloem en Passiebloem zorgt niet alleen voor een visueel aantrekkelijke uitstraling maar draagt ook bij aan een groenere leefomgeving. Deze planten bieden mogelijkheden voor natuurlijke schaduw, waardoor de gevels minder heet gaan worden in de felle zomerzon en versterken het ecologische karakter van het gebouw.
De gevelbekleding van de aanbouw wordt gekenmerkt door zwarte verticale houten latten in wisselende breedtes en diktes. Dit resulteert in een boeiend schubachtig effect, vergelijkbaar met de textuur van een boomkorst. De variatie in breedtes en diktes van de houten latten voegt niet alleen visuele diepte toe aan de gevel maar creëert ook een organische en natuurlijke uitstraling die naadloos aansluit bij de omringende natuurlijke elementen.
De keuze voor hout aan de buitenkant sluit aan bij de architectuur van de aangrenzende gebouwen, waardoor een harmonieuze eenheid ontstaat. Deze benadering zorgt niet alleen voor esthetische consistentie maar draagt ook bij aan een gevoel van verbondenheid met de omringende wijk.
Dit ontwerp benadrukt niet alleen de functionele uitbreiding van de woonruimte maar ook het streven naar een duurzame, natuurlijke en esthetisch verantwoorde integratie met de omgeving.
Locatie
Type
Amsterdam
Woningbouw particulier
Bouwjaar













